| 获成果评价年度: | 2021届市优评选活动 |
|---|---|
| 成果评价: | 公共建筑综合奖(综合奖) |
| 获成果评价单位: | 北京市建筑设计研究院有限公司 |
| 获成果评价等级: | 二等奖 |
| 成果评价类别: | 公共建筑 |
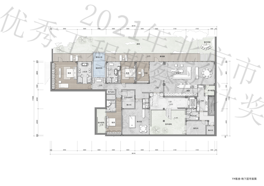
| 项目类型: | 195-酒店-02 |
项目介绍:
| 姓名 | 项目所在单位 | 专业 | 职称 | 工作职责 |
|---|---|---|---|---|
| 唐佳 | 北京市建筑设计研究院有限公司 | 建筑 | 高级工程师 | 设计总负责人 |
| 白文娟 | 北京市建筑设计研究院有限公司 | 建筑 | 高级工程师 | 专业负责人 |
| 王立新 | 北京市建筑设计研究院有限公司 | 结构 | 高级工程师 | 专业负责人 |
| 蒙小晶 | 北京市建筑设计研究院有限公司 | 设备 | 教授级高级工程师 | 专业负责人 |
| 刘倩 | 北京市建筑设计研究院有限公司 | 电气 | 教授级高级工程师 | 专业负责人 |
| 曹韡佳 | 北京市建筑设计研究院有限公司 | 建筑 | 工程师 | 专业负责人 |
| 厉娜 | 北京市建筑设计研究院有限公司 | 建筑 | 高级工程师 | 专业负责人 |
| 白嘉 | 北京市建筑设计研究院有限公司 | 结构 | 高级工程师 | 专业负责人 |
| 李伟峥 | 北京市建筑设计研究院有限公司 | 结构 | 高级工程师 | 专业负责人 |
| 葛华 | 北京市建筑设计研究院有限公司 | 结构 | 工程师 | 专业负责人 |
| 宋丽华 | 北京市建筑设计研究院有限公司 | 设备 | 高级工程师 | 专业负责人 |
| 胡宁 | 北京市建筑设计研究院有限公司 | 设备 | 高级工程师 | 专业负责人 |
| 郝晨思 | 北京市建筑设计研究院有限公司 | 电气 | 高级工程师 | 专业负责人 |
| 张争 | 北京市建筑设计研究院有限公司 | 电气 | 高级工程师 | 专业负责人 |
| 冯珂 | 北京市建筑设计研究院有限公司 | 设备 | 工程师 | 主要参与人 |
| 单位 |
|---|
| 北京集美组 |
| 条目 | 单位 |
|---|---|
| 建设单位 | 注册后可添加 |
| 施工单位 | 注册后可添加 |
| 建材及设备供应商 | 注册后可添加 |
展示图片: