北京市优秀工程勘察设计项目案例库

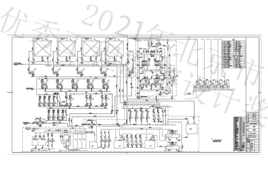
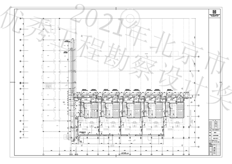
北京市方庄供热厂清洁能源改造工程

获成果评价年度: 2021届市优评选活动
成果评价: 燃气热力工程综合奖(综合奖)
获成果评价单位: 中国中元国际工程有限公司
获成果评价等级: 三等奖
成果评价类别: 市政公用工程
项目类型:

项目介绍:

姓名 项目所在单位 专业 职称 工作职责
付玲 中国中元国际工程有限公司 工艺 高级工程师 项目总设计师
闵娜 中国中元国际工程有限公司 热力 教授级高级工程师 项目经理
孙振国 中国中元国际工程有限公司 热力 工程师 热力设计人
张顺宇 中国中元国际工程有限公司 结构 高级工程师 结构设计人
劳大实 中国中元国际工程有限公司 电气 高级工程师 电气设计人
朴明君 中国中元国际工程有限公司 电气 工程师 电气设计人
朴明君 中国中元国际工程有限公司 电气 工程师 电气设计人
师帅 中国中元国际工程有限公司 自控 工程师 自控设计人
高冬雨 中国中元国际工程有限公司 建筑 高级工程师 建筑设计人
赵家琪 中国中元国际工程有限公司 给排水 高级工程师 给排水设计人
杨硕 中国中元国际工程有限公司 暖通 工程师 暖通设计人
王霄楠 中国中元国际工程有限公司 动力 工程师 动力设计人
吴凡 中国中元国际工程有限公司 总图 高级工程师 总图设计人
朱江 中国中元国际工程有限公司 自控 高级工程师 自控设计人
孔祥渠 中国中元国际工程有限公司 动力 高级工程师 动力设计人
王皓 中国中元国际工程有限公司 热力 高级工程师 工艺设计人
单位
条目 单位
建设单位 注册后可添加
施工单位 注册后可添加
建材及设备供应商 注册后可添加

展示图片: