| 获成果评价年度: | 2025届市优评选活动 |
|---|---|
| 成果评价: | 女建筑师优秀设计单项成果评价(综合奖) |
| 获成果评价单位: | 北京弘石嘉业建筑设计有限公司 |
| 获成果评价等级: | 三等成果评价 |
| 成果评价类别: | 女建筑师优秀设计专业 |
| 项目类型: | 新建 |
项目介绍:
| 姓名 | 项目所在单位 | 专业 | 职称 | 工作职责 |
|---|---|---|---|---|
| 张兵 | 北京弘石嘉业建筑设计有限公司 | 建筑专业 | 高级建筑师 | 项目经理 |
| 张维 | 北京弘石嘉业建筑设计有限公司 | 建筑专业 | 高级工程师 | 项目经理 |
| 王琳 | 北京弘石嘉业建筑设计有限公司 | 建筑专业 | 工程师 | 建筑专业设计师 |
| 马孝忠 | 北京弘石嘉业建筑设计有限公司 | 建筑专业 | 工程师 | 方案主创设计师 |
| 张露秋 | 北京弘石嘉业建筑设计有限公司 | 建筑专业 | 高级工程师 | 方案主创设计师 |
| 刘思源 | 北京弘石嘉业建筑设计有限公司 | 建筑专业 | 方案设计师 | |
| 薛微 | 北京弘石嘉业建筑设计有限公司 | 结构专业 | 工程师 | 结构专业负责人 |
| 张翠珍 | 北京弘石嘉业建筑设计有限公司 | 建筑专业 | 高级建筑师 | 建筑专业负责人 |
| 李恒 | 北京弘石嘉业建筑设计有限公司 | 结构专业 | 工程师 | 结构工程师 |
| 张建霞 | 北京弘石嘉业建筑设计有限公司 | 给排水专业 | 高级工程师 | 给排水专业负责人 |
| 师科峰 | 北京弘石嘉业建筑设计有限公司 | 电气专业 | 高级工程师 | 电气专业负责人 |
| 吴海燕 | 北京弘石嘉业建筑设计有限公司 | 建筑专业 | 工程师 | 建筑专业设计师 |
| 王智 | 北京弘石嘉业建筑设计有限公司 | 建筑专业 | 建筑专业设计师 | |
| 韩云燕 | 北京弘石嘉业建筑设计有限公司 | 结构专业 | 工程师 | 结构工程师 |
| 张佳佳 | 北京弘石嘉业建筑设计有限公司 | 结构专业 | 工程师 | 结构工程师 |
| 王增志 | 北京弘石嘉业建筑设计有限公司 | 结构专业 | 助理工程师 | 结构工程师 |
| 周甄缘 | 北京弘石嘉业建筑设计有限公司 | 给排水专业 | 高级工程师 | 给排水工程师 |
| 骆心言 | 北京弘石嘉业建筑设计有限公司 | 给排水专业 | 工程师 | 给排水工程师 |
| 田林林 | 北京弘石嘉业建筑设计有限公司 | 暖通专业 | 高级工程师 | 暖通工程师 |
| 王智伟 | 北京弘石嘉业建筑设计有限公司 | 电气专业 | 工程师 | 电气工程师 |
| 条目 | 单位 |
|---|---|
| 建设单位 | 注册后可添加 |
| 施工单位 | 注册后可添加 |
| 建材及设备供应商 | 注册后可添加 |
照片:
照片:
照片:
照片:
照片:
照片:
照片:
照片:
照片:
照片:
照片:
照片:
照片:
照片:
照片:
照片:
照片:
照片:
照片:
照片:
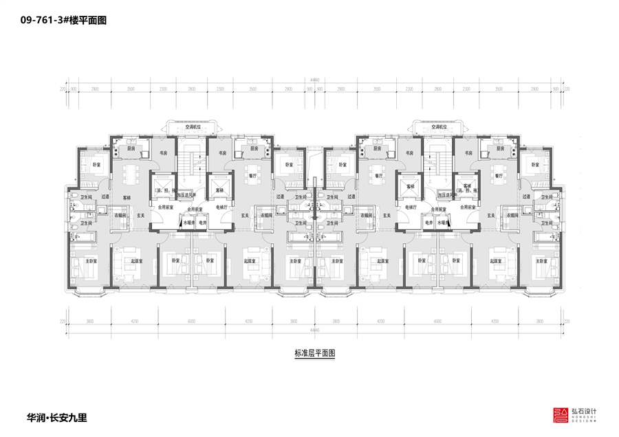
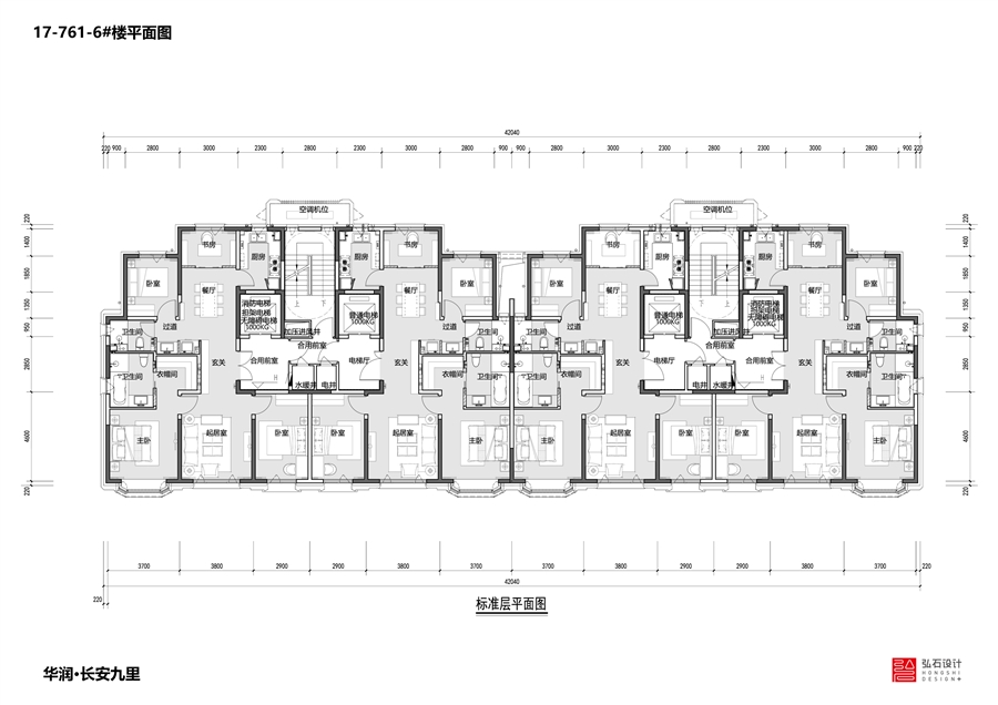
图册:
图册:
图册:
图册:
图册:
图册:
图册:
图册:
图册:
图册:
图册:
图册:
图册:
图册:
图册:
图册:
图册: