| 获成果评价年度: | 2025届市优评选活动 |
|---|---|
| 成果评价: | 女建筑师优秀设计单项成果评价(综合奖) |
| 获成果评价单位: | 中国中元国际工程有限公司 |
| 获成果评价等级: | 三等成果评价 |
| 成果评价类别: | 女建筑师优秀设计专业 |
| 项目类型: | 新建 |
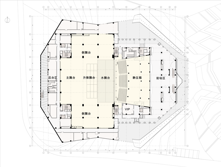
项目介绍:
| 姓名 | 项目所在单位 | 专业 | 职称 | 工作职责 |
|---|---|---|---|---|
| 孙宗列 | 中国中元国际工程有限公司 | 建筑 | 正高级工程师 | 项目方案主创 |
| 朱轶蕾 | 中国中元国际工程有限公司 | 建筑 | 正高级工程师 | 项目负责人 |
| 霍续东 | 中国中元国际工程有限公司 | 建筑 | 高级工程师 | 建筑负责人 |
| 傅强 | 中国中元国际工程有限公司 | 建筑 | 高级工程师 | 建筑负责人及项目经理 |
| 吴双月 | 中国中元国际工程有限公司 | 建筑 | 高级工程师 | 建筑负责人 |
| 赵会强 | 中国中元国际工程有限公司 | 结构 | 正高级工程师 | 结构负责人 |
| 郭伟华 | 中国中元国际工程有限公司 | 总图 | 高级工程师 | 总图负责人 |
| 张旭 | 中国中元国际工程有限公司 | 给排水 | 高级工程师 | 给排水负责人 |
| 王野 | 中国中元国际工程有限公司 | 暖通 | 工程师 | 暖通负责人 |
| 张久清 | 中国中元国际工程有限公司 | 电气 | 工程师 | 电气负责人 |
| 鲁希炜 | 中国中元国际工程有限公司 | 智能化 | 工程师 | 智能化负责人 |
| 桂宇 | 中国中元国际工程有限公司 | 声学 | 高级工程师 | 声学负责人 |
| 刘一 | 中国中元国际工程有限公司 | 室内 | 高级工程师 | 室内负责人 |
| 李凯 | 中国中元国际工程有限公司 | 建筑 | 正高级工程师 | 建筑审核人 |
| 许亮烘 | 中国中元国际工程有限公司 | 建筑 | 工程师 | 建筑校对人 |
| 史诗 | 中国中元国际工程有限公司 | 结构 | 工程师 | 结构设计人 |
| 王伟 | 中国中元国际工程有限公司 | 结构 | 正高级工程师 | 结构审核人 |
| 刘澳兵 | 中国中元国际工程有限公司 | 给排水 | 正高级工程师 | 给排水审核人 |
| 冯霈森 | 中国中元国际工程有限公司 | 室内 | 工程师 | 室内设计人 |
| 张凯 | 中国中元国际工程有限公司 | 室内 | 正高级工程师 | 室内审核人 |
| 单位 |
|---|
| 中国中元国际工程有限公司 |
| 条目 | 单位 |
|---|---|
| 建设单位 | 注册后可添加 |
| 施工单位 | 注册后可添加 |
| 建材及设备供应商 | 注册后可添加 |
照片:
照片:
照片:
照片:
照片:
照片:
照片:
照片:
照片:
照片:
照片:
照片:
图册:
图册:
图册:
图册:
图册:
图册:
图册:
图册:
图册: