| 获成果评价年度: | 2021届市优评选活动 |
|---|---|
| 成果评价: | 水系统工程专项奖(市政环境类)(专项奖) |
| 获成果评价单位: | 北京市市政工程设计研究总院有限公司 |
| 获成果评价等级: | 三等奖 |
| 成果评价类别: | 水系统工程(市政环境类) |
| 项目类型: |
项目介绍:
| 姓名 | 项目所在单位 | 专业 | 职称 | 工作职责 |
|---|---|---|---|---|
| 宋文波 | 北京市市政工程设计研究总院有限公司 | 给排水、综合管廊 | 教授级工程师 | 项目负责人、综合管廊专业审定人 |
| 李慧颖 | 北京市市政工程设计研究总院有限公司 | 给排水、综合管廊 | 教授级工程师 | 排水专业审核人 |
| 刘斌 | 北京市市政工程设计研究总院有限公司 | 给排水、综合管廊 | 高级工程师 | 综合管廊专业负责人 |
| 温健 | 北京市市政工程设计研究总院有限公司 | 给排水、综合管廊 | 高级工程师 | 排水专业负责人 |
| 赵申 | 北京市市政工程设计研究总院有限公司 | 电气 | 高级工程师 | 电气专业负责人 |
| 周超华 | 北京市市政工程设计研究总院有限公司 | 岩土 | 高级工程师 | 岩土专业负责人 |
| 芦建军 | 北京市市政工程设计研究总院有限公司 | 结构 | 高级工程师 | 结构专业负责人 |
| 林欣欣 | 北京市市政工程设计研究总院有限公司 | 暖通 | 高级工程师 | 暖通专业负责人 |
| 单位 |
|---|
| 无 |
| 条目 | 单位 |
|---|---|
| 建设单位 | 注册后可添加 |
| 施工单位 | 注册后可添加 |
| 建材及设备供应商 | 注册后可添加 |
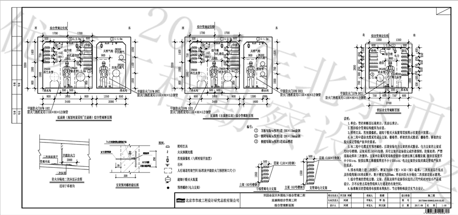
展示图片: