| 获成果评价年度: | 2021届市优评选活动 |
|---|---|
| 成果评价: | 公共建筑综合奖(综合奖) |
| 获成果评价单位: | 北京市建筑设计研究院有限公司 |
| 获成果评价等级: | 一等奖 |
| 成果评价类别: | 公共建筑 |
| 项目类型: | 173-教育-06 |
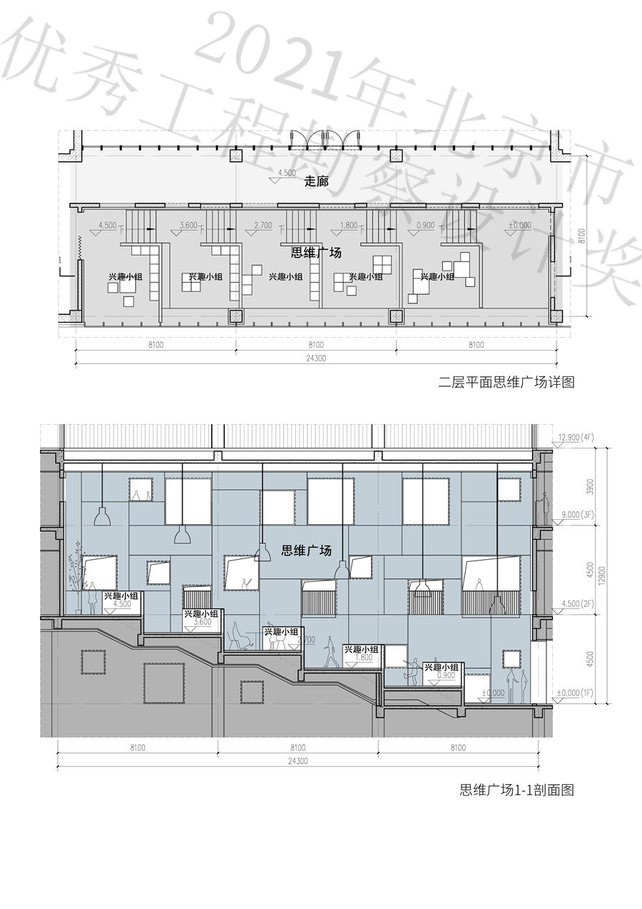
项目介绍:
| 姓名 | 项目所在单位 | 专业 | 职称 | 工作职责 |
|---|---|---|---|---|
| 王小工 | 北京市建筑设计研究院有限公司 | 建筑 | 教授级高级工程师 | 设计总负责人 |
| 王英童 | 北京市建筑设计研究院有限公司 | 建筑 | 高级工程师 | 设计总负责人 |
| 张月华 | 北京市建筑设计研究院有限公司 | 建筑 | 工程师 | 主要参加人 |
| 何亚琴 | 北京市建筑设计研究院有限公司 | 建筑 | 工程师 | 主要参加人 |
| 杨秉宏 | 北京市建筑设计研究院有限公司 | 建筑 | 助理工程师 | 主要参加人 |
| 毛伟中 | 北京市建筑设计研究院有限公司 | 结构 | 高级工程师 | 专业负责人 |
| 侯宇 | 北京市建筑设计研究院有限公司 | 设备 | 高级工程师 | 专业负责人 |
| 张力 | 北京市建筑设计研究院有限公司 | 电气 | 教授级高级工程师 | 专业负责人 |
| 马文丽 | 北京市建筑设计研究院有限公司 | 结构 | 高级工程师 | 主要参加人 |
| 于猛 | 北京市建筑设计研究院有限公司 | 结构 | 高级工程师 | 主要参加人 |
| 任艳 | 北京市建筑设计研究院有限公司 | 设备 | 高级工程师 | 主要参加人 |
| 席海明 | 北京市建筑设计研究院有限公司 | 设备 | 工程师 | 主要参加人 |
| 胡亚鑫 | 北京市建筑设计研究院有限公司 | 设备 | 工程师 | 主要参加人 |
| 邓奕雯 | 北京市建筑设计研究院有限公司 | 设备 | 工程师 | 主要参加人 |
| 何枫青 | 北京市建筑设计研究院有限公司 | 电气 | 工程师 | 主要参加人 |
| 单位 |
|---|
| 无 |
| 条目 | 单位 |
|---|---|
| 建设单位 | 注册后可添加 |
| 施工单位 | 注册后可添加 |
| 建材及设备供应商 | 注册后可添加 |
展示图片: