| 获成果评价年度: | 2021届市优评选活动 |
|---|---|
| 成果评价: | 住宅与住宅小区综合奖(综合奖) |
| 获成果评价单位: | 中国中建设计集团有限公司 |
| 获成果评价等级: | 三等奖 |
| 成果评价类别: | 住宅与住宅小区 |
| 项目类型: | 居住-24 |
项目介绍:
| 姓名 | 项目所在单位 | 专业 | 职称 | 工作职责 |
|---|---|---|---|---|
| 阎福斌 | 中国中建设计集团有限公司 | 建筑 | 高级建筑师 | 设计总负责人 方案主要设计人 |
| 马翠英 | 中国中建设计集团有限公司 | 建筑 | 高级工程师 | 方案主要设计人 施工图建筑专业负责人 |
| 舒振兴 | 中国中建设计集团有限公司 | 建筑 | 高级工程师 | 技术负责人 |
| 周飞 | 中国中建设计集团有限公司 | 建筑 | 高级工程师 | 施工图审核 |
| 陈宁 | 中国中建设计集团有限公司 | 建筑 | 工程师 | 主要设计人 |
| 韩波 | 中国中建设计集团有限公司 | 建筑 | 工程师 | 主要设计人 |
| 徐骁 | 中国中建设计集团有限公司 | 建筑 | 工程师 | 设计人 |
| 陈浩然 | 中国中建设计集团有限公司 | 建筑 | 助理工程师 | 设计人 |
| 丛琳 | 中国中建设计集团有限公司 | 建筑 | 工程师 | 设计人 |
| 王铭帅 | 中国中建设计集团有限公司 | 结构 | 高级工程师 | 结构专业负责人 |
| 曹瑞军 | 中国中建设计集团有限公司 | 结构 | 工程师 | 结构主要设计人 |
| 黄毅 | 中国中建设计集团有限公司 | 给排水、暖通、电气 | 高级工程师 | 机电设备专业负责人 |
| 杨晓帆 | 中国中建设计集团有限公司 | 暖通 | 高级工程师 | 暖通专业施工图专业负责人 |
| 律海波 | 中国中建设计集团有限公司 | 给排水 | 高级工程师 | 给排水专业施工图专业负责人 |
| 邢光辉 | 中国中建设计集团有限公司 | 电气 | 高级工程师 | 电气专业施工图专业负责人 |
| 单位 |
|---|
| 无 |
| 条目 | 单位 |
|---|---|
| 建设单位 | 注册后可添加 |
| 施工单位 | 注册后可添加 |
| 建材及设备供应商 | 注册后可添加 |
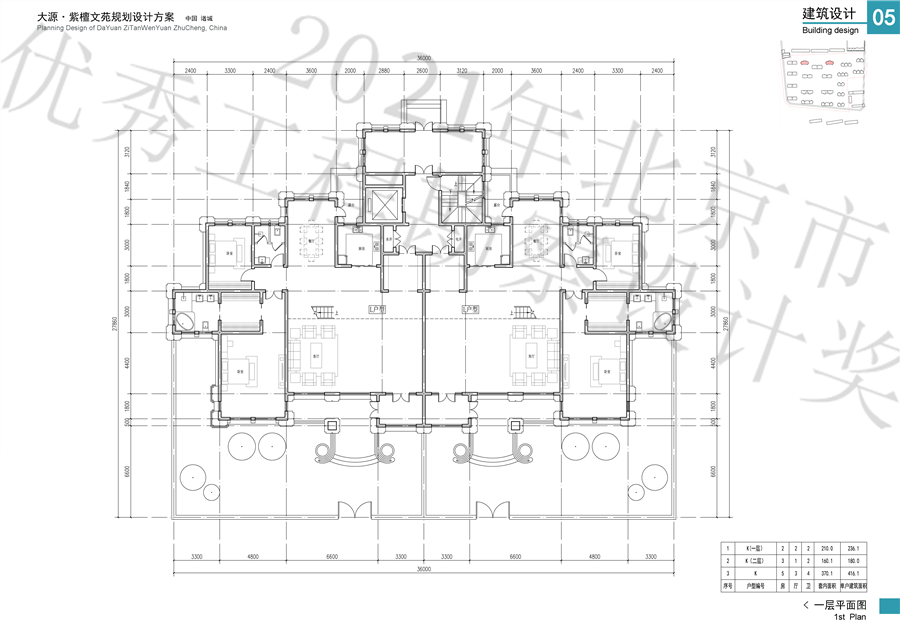
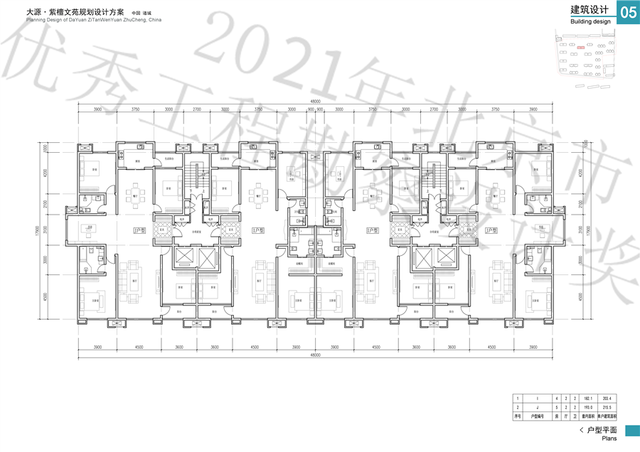
展示图片: