| 获成果评价年度: | 2025届市优评选活动 |
|---|---|
| 成果评价: | 城市更新设计单项成果评价(专项奖) |
| 获成果评价单位: | 中国建筑技术集团有限公司 |
| 获成果评价等级: | 二等成果评价 |
| 成果评价类别: | 城市更新设计 |
| 项目类型: |
项目介绍:
| 姓名 | 项目所在单位 | 专业 | 职称 | 工作职责 |
|---|---|---|---|---|
| 史有涛 | 中国建筑技术集团有限公司 | 结构 | 教授级高级工程师 | 项目负责人,负责项目整体的设计质量和进度,同时负责确定结构技术方案 |
| 吴颖 | 中国建筑技术集团有限公司 | 建筑 | 高级建筑师 | 项目负责人,负责确定技术方案 |
| 王德刚 | 中国建筑技术集团有限公司 | 建筑 | 高级工程师 | 专业负责人,负责技术进度 |
| 梁文胜 | 中国建筑技术集团有限公司 | 结构 | 高级工程师 | 结构专业负责人,负责项目的结构设计 |
| 韩蕊 | 中国建筑技术集团有限公司 | 暖通 | 高级工程师 | 暖通专业负责人,负责 确定技术方案 |
| 吴前飞 | 中国建筑技术集团有限公司 | 给排水 | 高级工程师 | 给排水专业负责人,负责 确定技术方案 |
| 边天 | 中国建筑技术集团有限公司 | 电气 | 高级工程师 | 电气专业负责人,负责 确定技术方案 |
| 李文腾 | 中国建筑技术集团有限公司 | 建筑 | 高级工程师 | 建筑专业设计人,参与部分建筑设计 |
| 刘恋 | 中国建筑技术集团有限公司 | 建筑 | 工程师 | 建筑专业设计人,参与部分建筑设计 |
| 康健 | 中国建筑技术集团有限公司 | 结构 | 高级工程师 | 参与结构设计、后期配合 |
| 纪维晶 | 中国建筑技术集团有限公司 | 暖通 | 高级工程师 | 暖通专业设计人,参与部分暖通设计 |
| 徐光远 | 中国建筑技术集团有限公司 | 给排水 | 高级工程师 | 参与给排水设计、后期配合 |
| 刘勃 | 中国建筑技术集团有限公司 | 电气 | 高级工程师 | 电气专业设计人,参与部分电气设计 |
| 陈思宇 | 中国建筑技术集团有限公司 | 结构 | 工程师 | 结构专业设计人,参与部分结构设计 |
| 王熙文 | 中国建筑技术集团有限公司 | 电气 | 工程师 | 电气专业设计人,参与部分电气设计 |
| 张亮亮 | 中国建筑技术集团有限公司 | 建筑 | 高级工程师 | 建筑专业设计人,参与部分建筑设计 |
| 乔瑞 | 中国建筑技术集团有限公司 | 建筑 | 高级工程师 | 建筑专业设计人,参与部分建筑设计 |
| 何纯熙 | 中国建筑技术集团有限公司 | 结构 | 工程师 | 结构专业设计人,参与部分结构设计 |
| 徐永悦 | 中国建筑技术集团有限公司 | 给排水 | 高级工程师 | 给排水专业设计人,参与部分给排水设计 |
| 陈梓菡 | 中国建筑技术集团有限公司 | 结构 | 助理工程师 | 结构专业设计人,参与部分结构设计 |
| 条目 | 单位 |
|---|---|
| 建设单位 | 注册后可添加 |
| 施工单位 | 注册后可添加 |
| 建材及设备供应商 | 注册后可添加 |
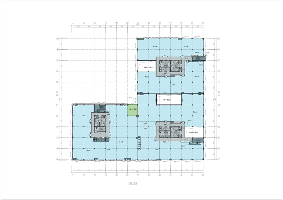
建筑类项目图纸(包括区位图、环境关系图、总平面、主要平面、立面和剖面、必要的分析图等):
建筑类项目图纸(包括区位图、环境关系图、总平面、主要平面、立面和剖面、必要的分析图等):
建筑类项目图纸(包括区位图、环境关系图、总平面、主要平面、立面和剖面、必要的分析图等):
建筑类项目图纸(包括区位图、环境关系图、总平面、主要平面、立面和剖面、必要的分析图等):
建筑类项目图纸(包括区位图、环境关系图、总平面、主要平面、立面和剖面、必要的分析图等):
建筑类项目图纸(包括区位图、环境关系图、总平面、主要平面、立面和剖面、必要的分析图等):
建筑类项目图纸(包括区位图、环境关系图、总平面、主要平面、立面和剖面、必要的分析图等):
建筑类项目图纸(包括区位图、环境关系图、总平面、主要平面、立面和剖面、必要的分析图等):
建筑类项目图纸(包括区位图、环境关系图、总平面、主要平面、立面和剖面、必要的分析图等):
建筑类项目图纸(包括区位图、环境关系图、总平面、主要平面、立面和剖面、必要的分析图等):
建筑类项目图纸(包括区位图、环境关系图、总平面、主要平面、立面和剖面、必要的分析图等):
建筑类项目图纸(包括区位图、环境关系图、总平面、主要平面、立面和剖面、必要的分析图等):
建筑类项目图纸(包括区位图、环境关系图、总平面、主要平面、立面和剖面、必要的分析图等):
建筑类项目图纸(包括区位图、环境关系图、总平面、主要平面、立面和剖面、必要的分析图等):
建筑类项目图纸(包括区位图、环境关系图、总平面、主要平面、立面和剖面、必要的分析图等):
建筑类项目图纸(包括区位图、环境关系图、总平面、主要平面、立面和剖面、必要的分析图等):
建筑类项目图纸(包括区位图、环境关系图、总平面、主要平面、立面和剖面、必要的分析图等):
建筑类项目图纸(包括区位图、环境关系图、总平面、主要平面、立面和剖面、必要的分析图等):
更新改造前、竣工并投入使用后的实景对比照片(在图名中标注拍照日期):
更新改造前、竣工并投入使用后的实景对比照片(在图名中标注拍照日期):
更新改造前、竣工并投入使用后的实景对比照片(在图名中标注拍照日期):
更新改造前、竣工并投入使用后的实景对比照片(在图名中标注拍照日期):
更新改造前、竣工并投入使用后的实景对比照片(在图名中标注拍照日期):
更新改造前、竣工并投入使用后的实景对比照片(在图名中标注拍照日期):
更新改造前、竣工并投入使用后的实景对比照片(在图名中标注拍照日期):
更新改造前、竣工并投入使用后的实景对比照片(在图名中标注拍照日期):
更新改造前、竣工并投入使用后的实景对比照片(在图名中标注拍照日期):
更新改造前、竣工并投入使用后的实景对比照片(在图名中标注拍照日期):
更新改造前、竣工并投入使用后的实景对比照片(在图名中标注拍照日期):
更新改造前、竣工并投入使用后的实景对比照片(在图名中标注拍照日期):
更新改造前、竣工并投入使用后的实景对比照片(在图名中标注拍照日期):
更新改造前、竣工并投入使用后的实景对比照片(在图名中标注拍照日期):
更新改造前、竣工并投入使用后的实景对比照片(在图名中标注拍照日期):
更新改造前、竣工并投入使用后的实景对比照片(在图名中标注拍照日期):