| 获成果评价年度: | 2025届市优评选活动 |
|---|---|
| 成果评价: | 工业工程设计综合成果评价(综合奖) |
| 获成果评价单位: | 中冶京诚工程技术有限公司 |
| 获成果评价等级: | 三等成果评价 |
| 成果评价类别: | 工业工程设计 |
| 项目类型: | 新建 |
项目介绍:
| 姓名 | 项目所在单位 | 专业 | 职称 | 工作职责 |
|---|---|---|---|---|
| 常旭 | 中冶京诚工程技术有限公司 | 钢铁冶金 | 正高级工程师 | 冶金公司总工程师 |
| 周博 | 中冶京诚工程技术有限公司 | 项目管理 | 高级工程师 | 项目负责人 |
| 樊伟亮 | 中冶京诚工程技术有限公司 | 连铸工艺 | 高级工程师 | 工艺设计 |
| 韩长仪 | 中冶京诚工程技术有限公司 | 机械工程 | 正高级工程师 | 设备设计 |
| 王静 | 中冶京诚工程技术有限公司 | 机械工程 | 正高级工程师 | 设备设计 |
| 李峰 | 中冶京诚工程技术有限公司 | 炼钢连铸 | 高级工程师 | 工艺设计 |
| 刘伟平 | 中冶京诚工程技术有限公司 | 机械 | 工程师 | 工艺设备管理 |
| 吕风阁 | 中冶京诚工程技术有限公司 | 建筑 | 工程师 | 总图建筑管理 |
| 苏丽 | 中冶京诚工程技术有限公司 | 给排水 | 高级工程师 | 设计专业负责人 |
| 秦齐 | 中冶京诚工程技术有限公司 | 电力 | 工程师 | 设计专业负责人 |
| 张卉 | 中冶京诚工程技术有限公司 | 仪表 | 高级工程师 | 设计专业负责人 |
| 赵学英 | 中冶京诚工程技术有限公司 | 建筑 | 正高级工程师 | 设计专业负责人 |
| 郭长岚 | 中冶京诚工程技术有限公司 | 混凝土 | 工程师 | 设计专业负责人 |
| 潘登 | 中冶京诚工程技术有限公司 | 钢结构 | 高级工程师 | 设计专业负责人 |
| 赵迪 | 中冶京诚工程技术有限公司 | 总图运输 | 高级工程师 | 设计专业负责人 |
| 潘意 | 中冶京诚工程技术有限公司 | 总图运输 | 高级工程师 | 设计专业负责人 |
| 朱旭颖 | 中冶京诚工程技术有限公司 | 通风 | 高级工程师 | 设计专业负责人 |
| 周辉颖 | 中冶京诚工程技术有限公司 | 电信 | 高级工程师 | 设计专业负责人 |
| 王旭 | 中冶京诚工程技术有限公司 | 检化验 | 高级工程师 | 设计专业负责人 |
| 潘世豪 | 中冶京诚工程技术有限公司 | 土建 | 工程师 | 现场施工服务 |
| 单位 |
|---|
| 中冶京诚工程技术有限公司 |
| 条目 | 单位 |
|---|---|
| 建设单位 | 注册后可添加 |
| 施工单位 | 注册后可添加 |
| 建材及设备供应商 | 注册后可添加 |
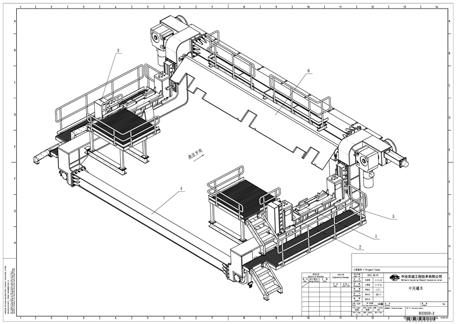
工程图集:
工程图集:
工程图集:
工程图集:
工程图集:
工程图集:
工程图集:
工程图集:
工程图集:
工程图集:
工程图集:
工程图集:
工程图集:
工程图集:
工程图集:
工程图集:
工程图集:
工程图集:
工程图集:
工程图集:
工程图集: