| 获成果评价年度: | 2021届市优评选活动 |
|---|---|
| 成果评价: | 建筑结构专项奖(专项奖) |
| 获成果评价单位: | 中国建筑设计研究院有限公司 |
| 获成果评价等级: | 二等奖 |
| 成果评价类别: | 建筑结构 |
| 项目类型: | 高层组16 |
项目介绍:
| 姓名 | 项目所在单位 | 专业 | 职称 | 工作职责 |
|---|---|---|---|---|
| 王载 | 中国建筑设计研究院有限公司 | 结构 | 教授级高级工程师 | 工种负责人 |
| 王文宇 | 中国建筑设计研究院有限公司 | 结构 | 教授级高级工程师 | 工种责任人 |
| 叶垚 | 中国建筑设计研究院有限公司 | 结构 | 高级工程师 | 工种负责人 |
| 曹立之 | 中国建筑设计研究院有限公司 | 结构 | 工程师 | 主要设计人 |
| 任庆英 | 中国建筑设计研究院有限公司 | 结构 | 教授级高级工程师 | 审定人 |
| 王大庆 | 中国建筑设计研究院有限公司 | 结构 | 教授级高级工程师 | 审核人 |
| 单位 |
|---|
| 无 |
| 条目 | 单位 |
|---|---|
| 建设单位 | 注册后可添加 |
| 施工单位 | 注册后可添加 |
| 建材及设备供应商 | 注册后可添加 |
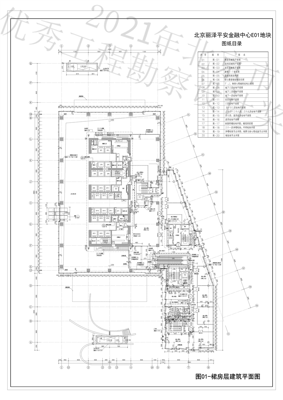
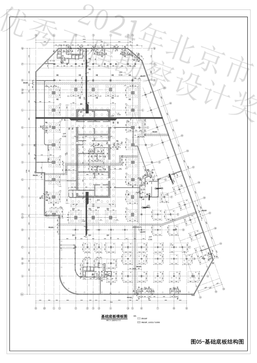
展示图片: