| 获成果评价年度: | 2025届市优评选活动 |
|---|---|
| 成果评价: | 城市更新设计单项成果评价(专项奖) |
| 获成果评价单位: | 中国中元国际工程有限公司 |
| 获成果评价等级: | 二等成果评价 |
| 成果评价类别: | 城市更新设计 |
| 项目类型: |
项目介绍:
| 姓名 | 项目所在单位 | 专业 | 职称 | 工作职责 |
|---|---|---|---|---|
| 郭骏 | 中国中元国际工程有限公司 | 建筑 | 教授级高工 | 主师 |
| 刘峰高 | 中国中元国际工程有限公司 | 建筑 | 教授级高工 | 副主师 |
| 赵会强 | 中国中元国际工程有限公司 | 结构 | 教授级高工 | 项目经理 |
| 王健宁 | 中国中元国际工程有限公司 | 结构 | 高级工程师 | 结构专业负责人 |
| 周文旭 | 中国中元国际工程有限公司 | 给排水 | 高级工程师 | 给排水专业负责人 |
| 王东越 | 中国中元国际工程有限公司 | 暖通 | 工程师 | 暖通专业负责人 |
| 陶硕 | 中国中元国际工程有限公司 | 电气 | 工程师 | 电气专业负责人 |
| 张松 | 中国中元国际工程有限公司 | 智能化 | 高级工程师 | 智能化专业负责人 |
| 马丽丽 | 中国中元国际工程有限公司 | 建筑 | 工程师 | 建筑专业负责人 |
| 刘梓洋 | 中国中元国际工程有限公司 | 暖通 | 工程师 | 暖通专业设计人 |
| 谭子豪 | 中国中元国际工程有限公司 | 智能化 | 工程师 | 智能化专业设计人 |
| 钟艺 | 中国中元国际工程有限公司 | 结构 | 高级工程师 | 结构专业设计人 |
| 张欣 | 中国中元国际工程有限公司 | 电气 | 教授级高工 | 电气专业负责人 |
| 陈冬 | 中国中元国际工程有限公司 | 暖通 | 工程师 | 暖通专业设计人 |
| 张亚立 | 中国中元国际工程有限公司 | 给排水 | 工程师 | 给排水专业设计人 |
| 郭伟华 | 中国中元国际工程有限公司 | 总图 | 高级工程师 | 总图专业负责人 |
| 周艳飞 | 中国中元国际工程有限公司 | 电气 | 工程师 | 电气专业设计人 |
| 陈宏亮 | 中国中元国际工程有限公司 | 给排水 | 高级工程师 | 给排水专业校对人 |
| 刘尧 | 中国中元国际工程有限公司 | 电气 | 高级工程师 | 电气专业审核人 |
| 王宇 | 中国中元国际工程有限公司 | 结构 | 教授级高工 | 结构专业校对人 |
| 条目 | 单位 |
|---|---|
| 建设单位 | 注册后可添加 |
| 施工单位 | 注册后可添加 |
| 建材及设备供应商 | 注册后可添加 |
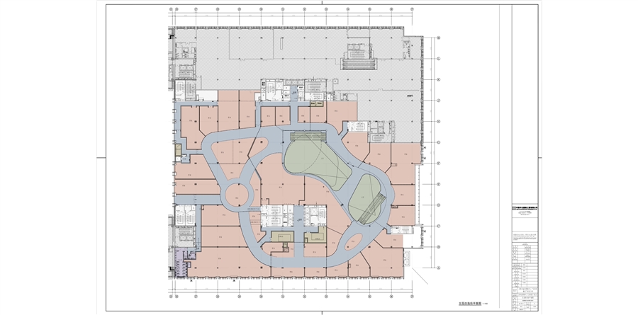
建筑类项目图纸(包括区位图、环境关系图、总平面、主要平面、立面和剖面、必要的分析图等):
建筑类项目图纸(包括区位图、环境关系图、总平面、主要平面、立面和剖面、必要的分析图等):
建筑类项目图纸(包括区位图、环境关系图、总平面、主要平面、立面和剖面、必要的分析图等):
建筑类项目图纸(包括区位图、环境关系图、总平面、主要平面、立面和剖面、必要的分析图等):
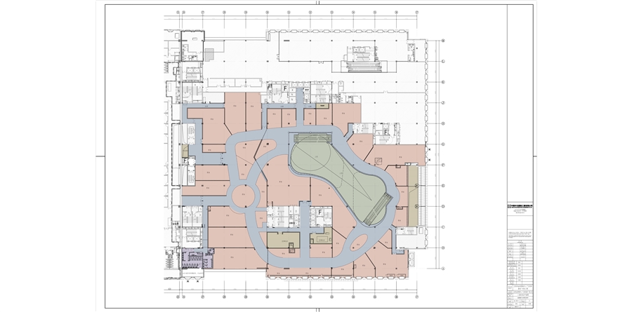
建筑类项目图纸(包括区位图、环境关系图、总平面、主要平面、立面和剖面、必要的分析图等):
建筑类项目图纸(包括区位图、环境关系图、总平面、主要平面、立面和剖面、必要的分析图等):
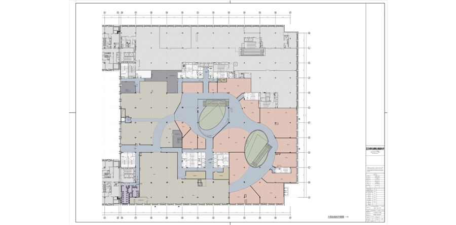
建筑类项目图纸(包括区位图、环境关系图、总平面、主要平面、立面和剖面、必要的分析图等):
建筑类项目图纸(包括区位图、环境关系图、总平面、主要平面、立面和剖面、必要的分析图等):
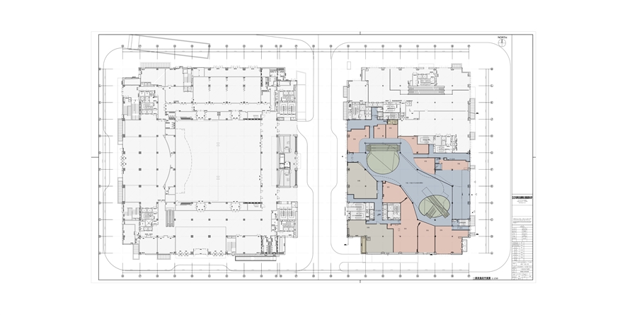
建筑类项目图纸(包括区位图、环境关系图、总平面、主要平面、立面和剖面、必要的分析图等):
建筑类项目图纸(包括区位图、环境关系图、总平面、主要平面、立面和剖面、必要的分析图等):
建筑类项目图纸(包括区位图、环境关系图、总平面、主要平面、立面和剖面、必要的分析图等):
更新改造前、竣工并投入使用后的实景对比照片(在图名中标注拍照日期):
更新改造前、竣工并投入使用后的实景对比照片(在图名中标注拍照日期):
更新改造前、竣工并投入使用后的实景对比照片(在图名中标注拍照日期):
更新改造前、竣工并投入使用后的实景对比照片(在图名中标注拍照日期):
更新改造前、竣工并投入使用后的实景对比照片(在图名中标注拍照日期):
更新改造前、竣工并投入使用后的实景对比照片(在图名中标注拍照日期):
更新改造前、竣工并投入使用后的实景对比照片(在图名中标注拍照日期):
更新改造前、竣工并投入使用后的实景对比照片(在图名中标注拍照日期):
更新改造前、竣工并投入使用后的实景对比照片(在图名中标注拍照日期):
更新改造前、竣工并投入使用后的实景对比照片(在图名中标注拍照日期):
更新改造前、竣工并投入使用后的实景对比照片(在图名中标注拍照日期):
更新改造前、竣工并投入使用后的实景对比照片(在图名中标注拍照日期):
更新改造前、竣工并投入使用后的实景对比照片(在图名中标注拍照日期):
更新改造前、竣工并投入使用后的实景对比照片(在图名中标注拍照日期):
更新改造前、竣工并投入使用后的实景对比照片(在图名中标注拍照日期):
更新改造前、竣工并投入使用后的实景对比照片(在图名中标注拍照日期):
更新改造前、竣工并投入使用后的实景对比照片(在图名中标注拍照日期):
更新改造前、竣工并投入使用后的实景对比照片(在图名中标注拍照日期):
更新改造前、竣工并投入使用后的实景对比照片(在图名中标注拍照日期):
更新改造前、竣工并投入使用后的实景对比照片(在图名中标注拍照日期):