| 获成果评价年度: | 2019届市优评选活动 |
|---|---|
| 成果评价: | 公共建筑综合奖(综合奖) |
| 获成果评价单位: | 北京市建筑设计研究院有限公司 |
| 获成果评价等级: | 二等奖 |
| 成果评价类别: | 建筑工程设计 |
| 项目类型: | 办公 |
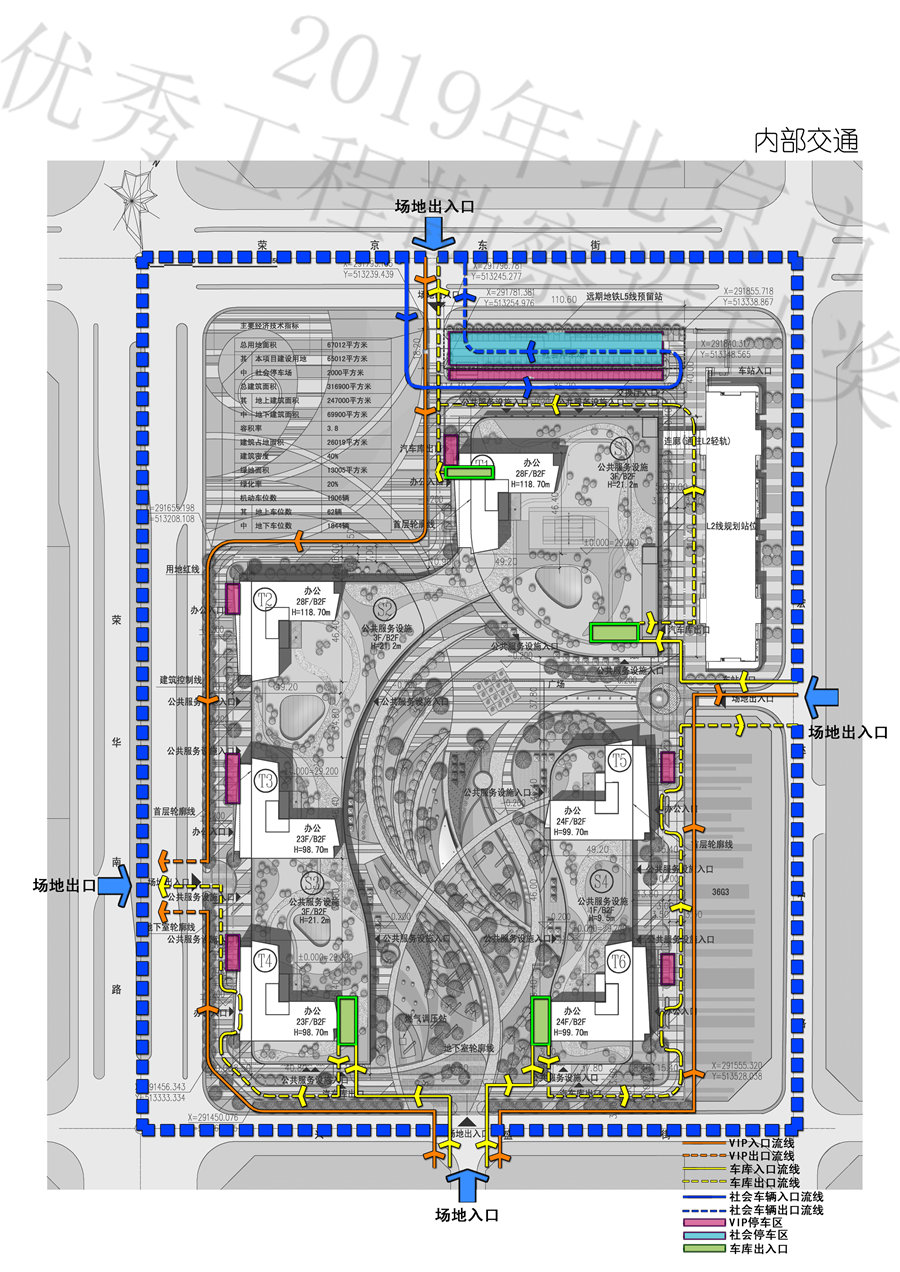
项目介绍:
| 姓名 | 项目所在单位 | 专业 | 职称 | 工作职责 |
|---|---|---|---|---|
| 林卫 | 北京市建筑设计研究院有限公司 | 建筑 | 高级工程师 | 设计总负责人、项目经理 |
| 侯新元 | 北京市建筑设计研究院有限公司 | 建筑 | 高级工程师 | 专业负责人 |
| 王云舒 | 北京市建筑设计研究院有限公司 | 建筑 | 高级工程师 | 专业负责人 |
| 刘会兴 | 北京市建筑设计研究院有限公司 | 结构 | 高级工程师 | 专业负责人 |
| 俞振乾 | 北京市建筑设计研究院有限公司 | 设备 | 高级工程师 | 专业负责人 |
| 张辉 | 北京市建筑设计研究院有限公司 | 设备 | 高级工程师 | 专业负责人 |
| 赵小文 | 北京市建筑设计研究院有限公司 | 电气 | 教授级高级工程师 | 专业负责人 |
| 崔博敦 | 北京市建筑设计研究院有限公司 | 建筑 | 助理工程师 | 主要参加人 |
| 李万斌 | 北京市建筑设计研究院有限公司 | 结构 | 助理工程师 | 主要参加人 |
| 吴佳彦 | 北京市建筑设计研究院有限公司 | 设备 | 工程师 | 主要参加人 |
| 吕晓薇 | 北京市建筑设计研究院有限公司 | 设备 | 助理工程师 | 主要参加人 |
| 段晓敏 | 北京市建筑设计研究院有限公司 | 设备 | 助理工程师 | 主要参加人 |
| 周狄青 | 北京市建筑设计研究院有限公司 | 结构 | 高级工程师 | 验证人 |
| 白喜录 | 北京市建筑设计研究院有限公司 | 电气 | 高级工程师 | 验证人 |
| 马跃 | 北京市建筑设计研究院有限公司 | 建筑 | 国家一级注册建筑师 | 验证人 |
| 单位 |
|---|
| 无 |
| 条目 | 单位 |
|---|---|
| 建设单位 | 注册后可添加 |
| 施工单位 | 注册后可添加 |
| 建材及设备供应商 | 注册后可添加 |
照片: