| 获成果评价年度: | 2025届市优评选活动 |
|---|---|
| 成果评价: | 城市更新设计单项成果评价(专项奖) |
| 获成果评价单位: | 中国建筑科学研究院有限公司 |
| 获成果评价等级: | 二等成果评价 |
| 成果评价类别: | 城市更新设计 |
| 项目类型: |
项目介绍:
| 姓名 | 项目所在单位 | 专业 | 职称 | 工作职责 |
|---|---|---|---|---|
| 孟岩 | 深圳市都市实践设计有限公司 | 建筑 | 美国纽约州注册建筑师 | 主持建筑师 |
| 张海君 | 深圳市都市实践设计有限公司 | 建筑 | 中级(一级注册建筑师) | 项目经理 |
| 刘通文 | 中国建筑科学研究院有限公司 | 建筑 | 高级建筑师 | 项目负责人、建筑专业负责人 |
| 陈建华 | 中国建筑科学研究院有限公司 | 结构 | 高级工程师 | 项目负责人、结构专业负责人 |
| 文汀 | 深圳市都市实践设计有限公司 | 建筑 | 中级 | 主创设计师 |
| Milutin Cerovic | 深圳市都市实践设计有限公司 | 建筑 | / | 主创设计师 |
| 赵英超 | 中国建筑科学研究院有限公司 | 建筑 | 高级建筑师 | 建筑设计 |
| 刘瑞红 | 中国建筑科学研究院有限公司 | 结构 | 高级工程师 | 结构设计 |
| 张雪娟 | 深圳市都市实践设计有限公司 | 建筑 | 中级 | 景观设计 |
| 李冠达 | 深圳市都市实践设计有限公司 | 建筑 | / | 景观设计 |
| 陈雅 | 中国建筑科学研究院有限公司 | 建筑 | 建筑师 | 校审 |
| 拓炳旭 | 中国建筑科学研究院有限公司 | 暖通 | 工程师 | 暖通设计 |
| 王沁雪 | 深圳市都市实践设计有限公司 | 建筑 | / | 方案设计 |
| 朱江晨 | 深圳市都市实践设计有限公司 | 建筑 | 中级 | 方案设计 |
| 高宇峰 | 深圳市都市实践设计有限公司 | 建筑 | 助理工程师 | 方案设计 |
| 刘学宁 | 中国建筑科学研究院有限公司 | 建筑 | 建筑师 | 建筑设计 |
| 鲁胜虎 | 中国建筑科学研究院有限公司 | 钢结构 | 工程师 | 钢结设计 |
| 张腊生 | 中国建筑科学研究院有限公司 | 给排水 | 工程师 | 给排水设计 |
| 冉玫 | 中国建筑科学研究院有限公司 | 钢结构 | 工程师 | 钢结构校审 |
| 施世涛 | 中国建筑科学研究院有限公司 | 绿建 | 高级建筑师 | 绿建 |
| 条目 | 单位 |
|---|---|
| 建设单位 | 注册后可添加 |
| 施工单位 | 注册后可添加 |
| 建材及设备供应商 | 注册后可添加 |
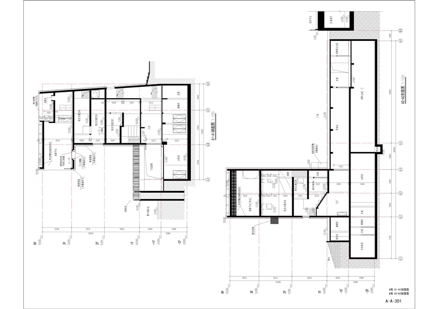
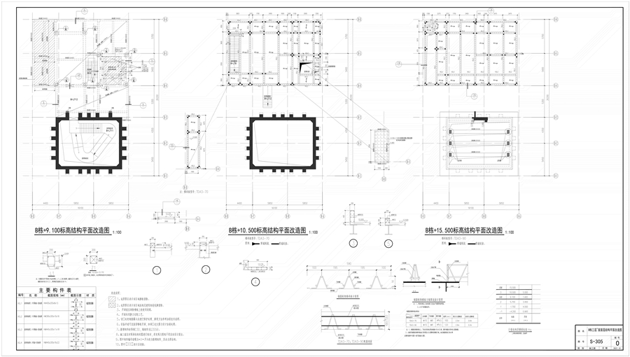
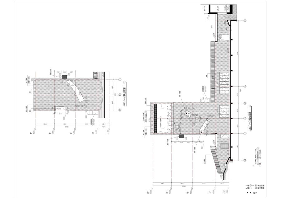
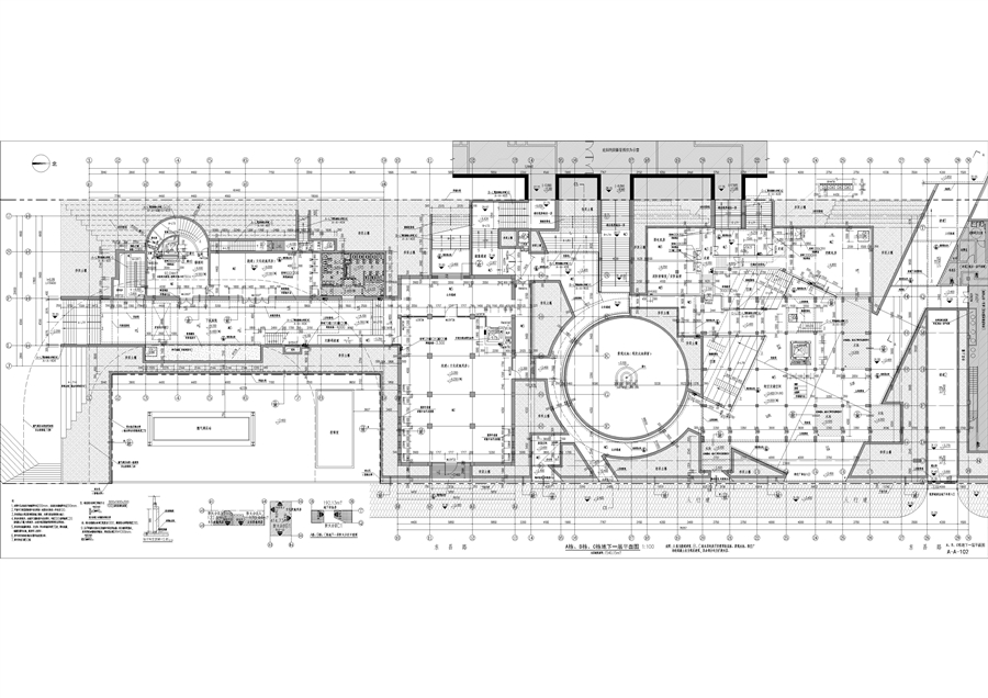
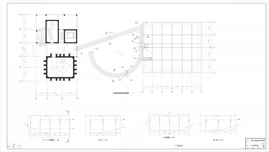
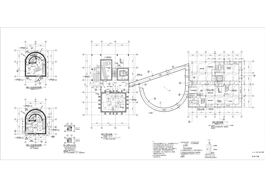
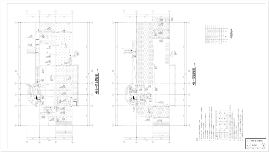
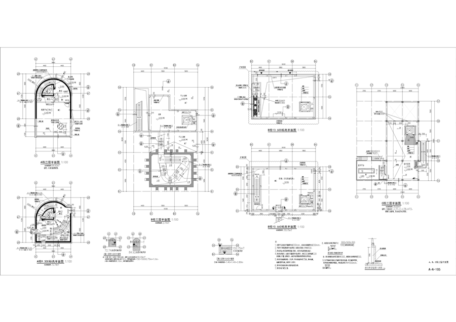
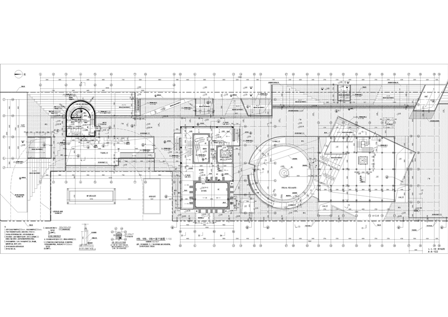
建筑类项目图纸(包括区位图、环境关系图、总平面、主要平面、立面和剖面、必要的分析图等):
建筑类项目图纸(包括区位图、环境关系图、总平面、主要平面、立面和剖面、必要的分析图等):
建筑类项目图纸(包括区位图、环境关系图、总平面、主要平面、立面和剖面、必要的分析图等):
建筑类项目图纸(包括区位图、环境关系图、总平面、主要平面、立面和剖面、必要的分析图等):
建筑类项目图纸(包括区位图、环境关系图、总平面、主要平面、立面和剖面、必要的分析图等):
建筑类项目图纸(包括区位图、环境关系图、总平面、主要平面、立面和剖面、必要的分析图等):
建筑类项目图纸(包括区位图、环境关系图、总平面、主要平面、立面和剖面、必要的分析图等):
建筑类项目图纸(包括区位图、环境关系图、总平面、主要平面、立面和剖面、必要的分析图等):
建筑类项目图纸(包括区位图、环境关系图、总平面、主要平面、立面和剖面、必要的分析图等):
建筑类项目图纸(包括区位图、环境关系图、总平面、主要平面、立面和剖面、必要的分析图等):
建筑类项目图纸(包括区位图、环境关系图、总平面、主要平面、立面和剖面、必要的分析图等):
建筑类项目图纸(包括区位图、环境关系图、总平面、主要平面、立面和剖面、必要的分析图等):
建筑类项目图纸(包括区位图、环境关系图、总平面、主要平面、立面和剖面、必要的分析图等):
建筑类项目图纸(包括区位图、环境关系图、总平面、主要平面、立面和剖面、必要的分析图等):
建筑类项目图纸(包括区位图、环境关系图、总平面、主要平面、立面和剖面、必要的分析图等):
建筑类项目图纸(包括区位图、环境关系图、总平面、主要平面、立面和剖面、必要的分析图等):
建筑类项目图纸(包括区位图、环境关系图、总平面、主要平面、立面和剖面、必要的分析图等):
建筑类项目图纸(包括区位图、环境关系图、总平面、主要平面、立面和剖面、必要的分析图等):
更新改造前、竣工并投入使用后的实景对比照片(在图名中标注拍照日期):
更新改造前、竣工并投入使用后的实景对比照片(在图名中标注拍照日期):
更新改造前、竣工并投入使用后的实景对比照片(在图名中标注拍照日期):
更新改造前、竣工并投入使用后的实景对比照片(在图名中标注拍照日期):
更新改造前、竣工并投入使用后的实景对比照片(在图名中标注拍照日期):
更新改造前、竣工并投入使用后的实景对比照片(在图名中标注拍照日期):
更新改造前、竣工并投入使用后的实景对比照片(在图名中标注拍照日期):
更新改造前、竣工并投入使用后的实景对比照片(在图名中标注拍照日期):
更新改造前、竣工并投入使用后的实景对比照片(在图名中标注拍照日期):
更新改造前、竣工并投入使用后的实景对比照片(在图名中标注拍照日期):
更新改造前、竣工并投入使用后的实景对比照片(在图名中标注拍照日期):
更新改造前、竣工并投入使用后的实景对比照片(在图名中标注拍照日期):
更新改造前、竣工并投入使用后的实景对比照片(在图名中标注拍照日期):
更新改造前、竣工并投入使用后的实景对比照片(在图名中标注拍照日期):
更新改造前、竣工并投入使用后的实景对比照片(在图名中标注拍照日期):
更新改造前、竣工并投入使用后的实景对比照片(在图名中标注拍照日期):
更新改造前、竣工并投入使用后的实景对比照片(在图名中标注拍照日期):